
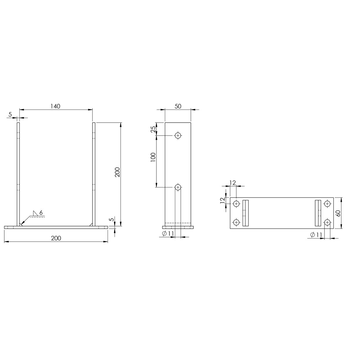
Pfostenträger U-Form -aufdübelbar-
für Leichtbaukonstruktionen
Höhe:
200 mm
Breite:
200 mm








